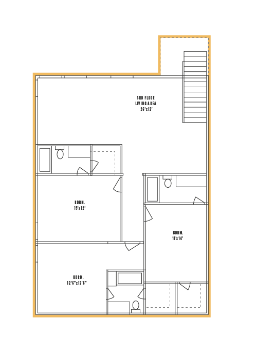
812 JAMES AVE.

Located on James and just a block from campus, this luxurious 4-bedroom home offers a perfect combination of comfort and convenience, privacy and community. Besides private bathrooms and oversize bedrooms, tenants will enjoy a spacious kitchen complete with a large central island, and two open living areas perfect for hosting group study sessions and game-day watch parties. Constructed with high quality materials and designer-inspired finishes, these furnished homes offer a luxurious and convenient lifestyle every student will love.


DISTANCE FROM CAMPUS

 
BW_Bike_Icon.png

1 min.

BW_Walk_Icon.png

2 min.

 
 
 

 

Features & Amenities

  • Close proximity to campus

  • 4 oversize bedrooms

  • Private bathrooms

  • Spacious walk-in closets

  • Large kitchen islands

  • Granite countertops

  • Custom cabinetry

  • Covered patio